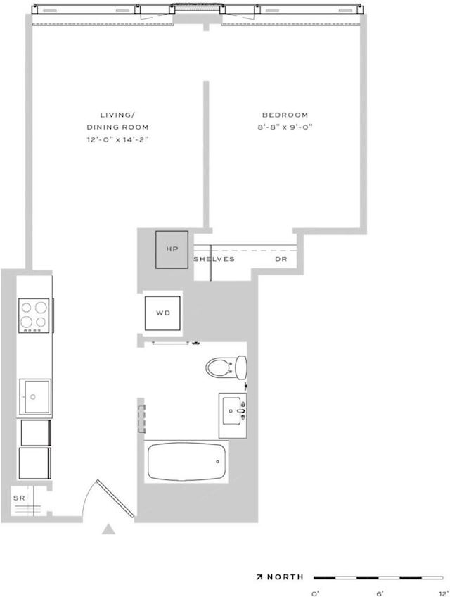
Citypoint Tower 1 Floor Plans

Towers 2 and 3 share a courtyard with the vagelos education center a verdant area with stunning views of the river the george washington bridge and the palisades.
Citypoint tower 1 floor plans. All downtown brooklyn needs is you. Bay lake tower at disney s contemporary resort. Tower 1 conveniently connects to 50 haven ave which houses cuimc s athletic center and the ballroom where the student meal plan is served. City point is by square footage the largest mixed use development in the city.
As part of phase ii of city point the apartments conveniently sits above citytarget alamo drafthouse cinema century 21 and a collection of unique food purveyors. City point tower one offers an unparalleled living experience in the heart of brooklyn. The building offers over 60 000 square feet of retail including the largest health club in the square mile operated by nuffield health and over an acre of public. Originally named britannic house citypoint was built in 1967 as a 35 storey 122 metres 400 ft tall headquarters for british petroleum now bp becoming the first building.
Citypoint is a 36 storey landmark tower in the city of london. Designed by cookfox with curtain wall cladding by permasteelisa group city tower rises from the center of brooklyn s most prominent development city point. Citypoint previously known as britannic house and britannic tower is a skyscraper located on ropemaker street on the northern fringe of the city of london the main financial district and historic nucleus of london. 14 active sales 1 654 per ft.
With residences beginning at the 20th floor and above more than 700 000 square feet of boutique and destination retail entertainment and dining city tower is the essence of urban living. Designed by cookfox with curtain wall cladding by permasteelisa group city tower rises from the center of brooklyn s most prominent development city point. Built in 1967 the building is one of the largest in the city and was subject to a comprehensive reconstruction in 2001. This 720 foot tall tower features over 40 000 square feet of indoor and outdoor amenities including the highest residential infinity pool in the western hemisphere.
With residences beginning at the 20th floor and above more than 700 000 square feet of boutique and destination retail entertainment and dining city tower is the essence of urban living. View floor plans views of parking area or obstructed view 1 queen size bed 1 double size sleeper sofa sleeps up to 4 view floor plans views of parking area or obstructed view 1 queen size bed 1 double size sleeper sofa sleeps up to 4. Welcome to citypoint s official website.